top of page

Create Your First Project
Start adding your projects to your portfolio. Click on "Manage Projects" to get started
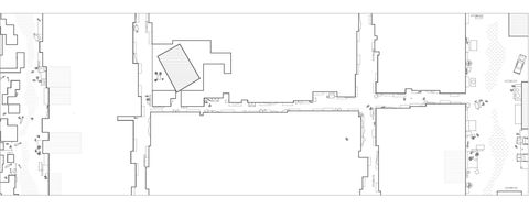
Katchi Abadis of Lahore
Date
- Dec 2019
Location
- Lahore, Pakistan
Researching two katchi abadis in Lahore. A Katchi Abadi is referred to as a slum area, where informal settlement is created in an Urban City. With the rapid expansion of Lahore and more people moving from rural to urban areas, more katchi abadis are being developed. This comes with a lot of issues - such as encroachment, bad living conditions, sewerage, lack of light, providing unhealthy living.
We start researching in how to better plan these slums, looking at streets as tools for transformation, to improve not only these residents life, but also the urban fabric of the city.
bottom of page
















































































